A mid-century modern home built in 1964 — square footprint, open courtyard, one tree in the corner. Documenting its remodel.
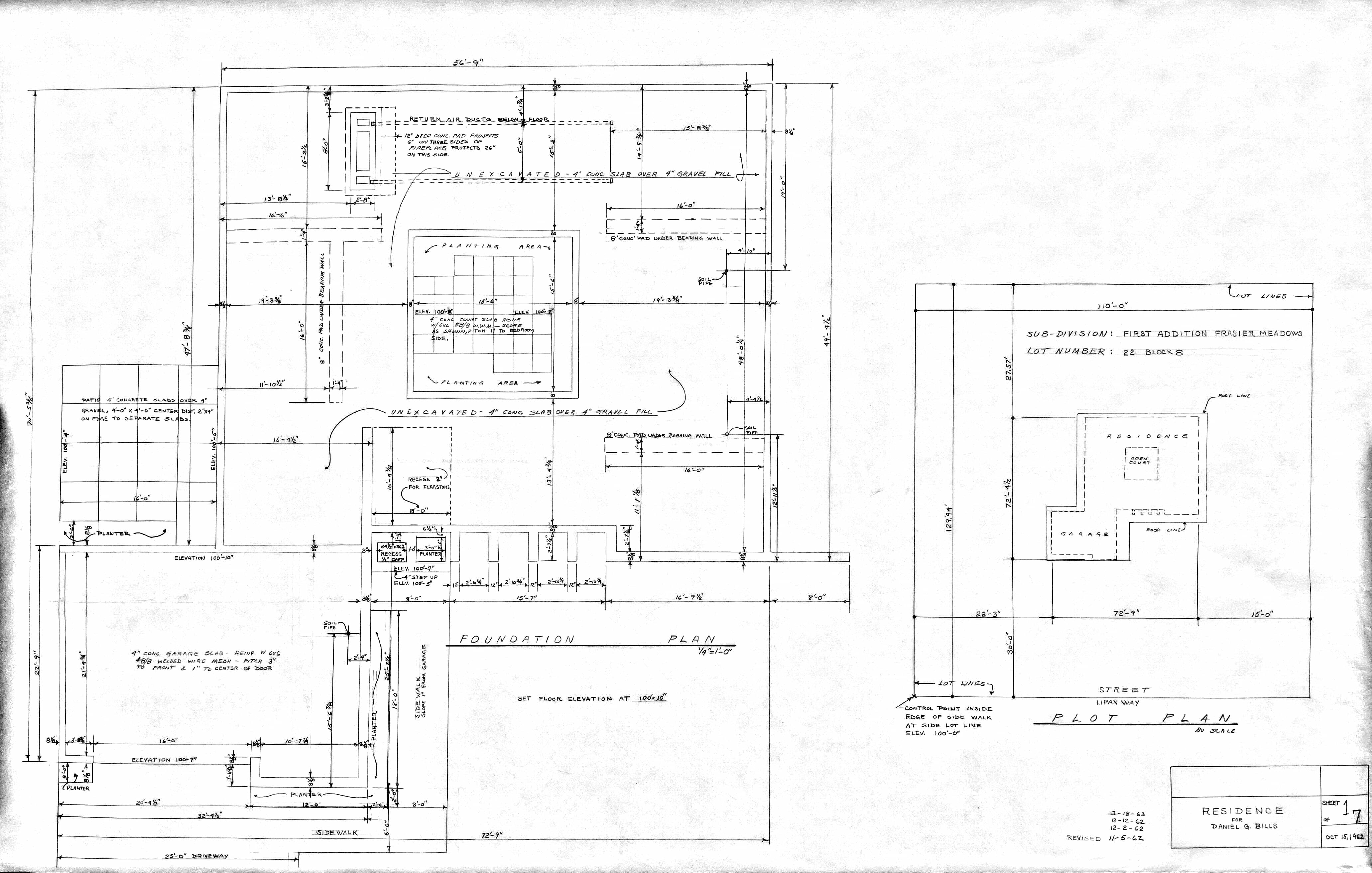
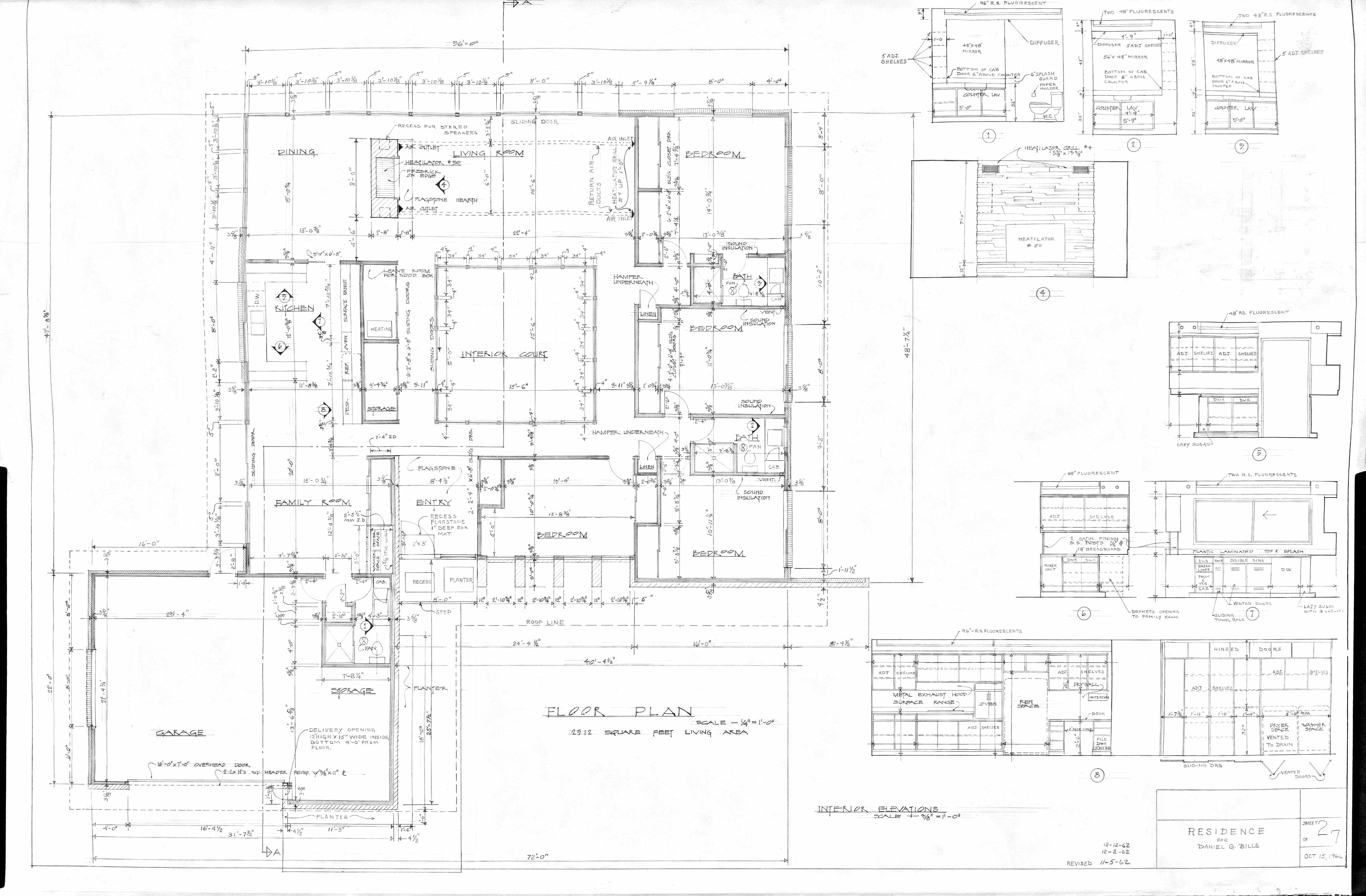
Built in 1964 starting from catalog architecture plans from Home Planners Inc., designed by architect Irving E. Palmquist. The house is a textbook expression of mid-century modern residential design — flat roof, clean lines, and a square footprint organized around an open central courtyard.
The courtyard is the heart of the house. A single tree grows in its upper corner, visible from almost every room. The remodel respects the original geometry while updating everything that 60 years of wear has touched.
The original architectural drawings survived with the house. We photographed each sheet and corrected the perspective — the full set is documented here for reference and posterity.
A running record of the work — demolition, discovery, and construction. Updated as the project moves forward.




